Scuola primaria “Celso Costantini” – Zoppola
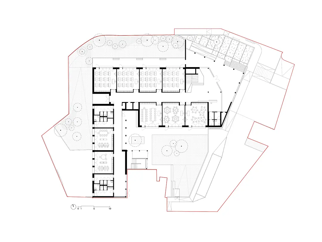
La scuola primaria “Celso Costantini” completa il polo educativo per l’infanzia della frazione di Castions. Il progetto prevede la riqualificazione di un edificio esistente risalente agli anni ’70, la demolizione di un vecchio fabbricato con problematiche strutturali e la realizzazione di un nuovo edificio che si apre verso lo spazio urbano, attraverso una riorganizzazione degli ingressi e degli spazi esterni, con l’intento di enfatizzare il concetto di “scuola di comunità”. L’agorà e la piazza porticata sono concepiti come spazi civici, destinati alla socializzazione e all’attesa.
Il piano terra è progettato in funzione delle aree verdi, che diventano parte integrante del percorso educativo. Le aule per i più piccoli e i laboratori hanno accesso diretto ai giardini protetti, ampliando lo spazio didattico verso l’esterno e perseguendo i principi delle scuole en plein air, dove lo scambio e l’interazione con l’ambiente sono centrali.
L’impianto planivolumetrico, sviluppato secondo le linee guida MIUR, è organizzato su uno schema regolare a tre campate, con setti in calcestruzzo gettato in opera, solai in predalles e tetto piano. La razionalità dell’intervento ha permesso di completare i lavori in quindici mesi dall’avvio delle attività, rispettando il budget di spesa e consentendo alla Stazione Appaltante di trasferire i bambini, precedentemente ospitati in spazi provvisori, all’inizio del nuovo anno scolastico.
L’impiego di superfici materiche, l’uso del colore e soluzioni tecnologiche mirate al comfort degli ambienti, definiscono la qualità degli spazi interni. L’organizzazione spaziale è stata progettata per favorire il rapporto visivo con gli spazi condivisi: i laboratori, la biblioteca e gli spazi a supporto dell’insegnamento si affacciano con ampie vetrate sul connettivo, sul verde e sul paesaggio, oltre che sull’ampio atrio centrale, dove la scala principale diventa occasione di gioco e punto di riferimento per le attività collettive.
L’intero complesso, di circa 2000 mq, è progettato secondo i criteri nZEB (edificio a energia quasi zero). Un parco fotovoltaico alimenta i sistemi di generazione in pompa di calore aria-acqua, collegati all’impianto radiante a pavimento. Il gruppo di pompe di calore, alimentato dal parco fotovoltaico, gestisce l’alimentazione dell’impianto radiante, il trattamento dell’aria e il raffrescamento degli ambienti. Un sistema di automazione domestica (building automation) ottimizza la manutenzione ordinaria e straordinaria, riducendo i tempi e migliorando l’efficienza complessiva.
Informazioni
Settore
Architettura
Stato lavori
Costruito
Tipologia
Educazione
Location
Fr. Castions, Comune di Zoppola (Pordenone), Friuli Venezia Giulia
Anno
2020
Intervento
Nuova scuola primaria “Card. Celso Costantini”
Committente
Centrale Unica di Committenza tra i Comuni di Porcia, Fontanafredda, Roveredo in Piano e Zoppola
Dimensioni
superficie lorda 1.878 m2
Importo opere
3.250.000,00 €
Prestazioni
progetto definitivo, progetto esecutivo, direzione lavori
Progetto
MATE – Cooprogetti
Gruppo di progettazione
Maurizio Pavani, Fabiana Aneghini, Livia Travaglini, Sara Greco, Alessandra Strinati, Tommaso Cesaro, Antonia La Fratta, Elettra Loewenthal, Emilio Bona Veggi, Alessandro Sanna, Eleonora Sablone, Virginia Celentano, Franca Conti, Francesca Di Nocco, Giacomo Cadelli, Maurizio Casoni
Impresa esecutrice
Impresa Battistella
Foto
Fabio Mantovani




















