Polo scolastico – Castelnovo ne’ Monti
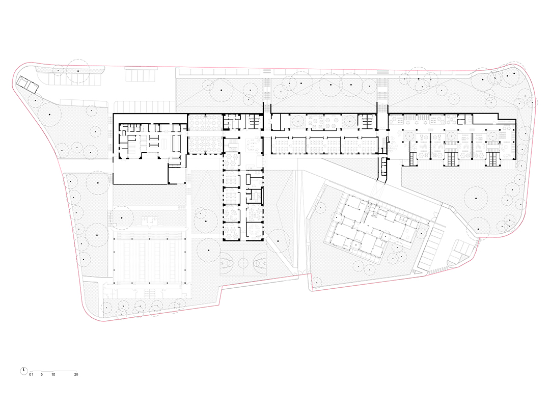
Il Polo scolastico di Castelnovo ne’ Monti nasce dalla demolizione della scuola esistente con l’obiettivo di consegnare ai cittadini una nuova scuola “innovativa”, capace di migliorare l’offerta educativa del comune garantendo una maggiore omogeneità territoriale dell’istruzione. Il polo scolastico è composto da un nido, una scuola dell’infanzia e una scuola primaria. Completano l’offerta un centro confezionamento pasti e una palestra.
Il progetto di MATE ha riguardato la realizzazione della nuova scuola primaria in due fasi, della scuola dell’infanzia e del centro di confezionamento pasti. A pieno regime il polo potrà ospitare oltre 500 alunni.
L’intero intervento è stato guidato dalla configurazione orografica del terreno in forte declivio e dalla necessità di avere un edificio costruibile per parti senza andare a compromettere la continuità delle attività didattiche durante tutte le fasi di cantiere.
Nel rispetto dei programmi pedagogici e didattici studiati insieme al “Centro Internazionale Loris Malaguzzi”, per i diversi livelli di istruzione, tutte le aule sono del tipo 3.0 e rispettano innovativi indirizzi di flessibilità e inclusività puntando a garantire elevati standard di confort ambientale, acustico, termico e illuminotecnico.
L’edificio grazie all’utilizzo di tecnologie avanzate e fonti di energia rinnovabile, gestite attraverso sistemi automatizzati, è particolarmente efficiente da un punto di vista energetico risultando edificio a energia quasi zero (nZEB).
Nel progetto delle aree esterne, il dialogo costante tra i salti di quota del terreno e i livelli d’imposta degli edifici genera una complessa e divertente alternanza di tipologie di spazi all’aperto sempre diversi: zone in pendenza, distese pianeggianti coperte o scoperte, pianure attrezzate e corti interne. Tali spazi “outdoor” con la loro variabilità tipologica costituiscono un completamento di nuova generazione dell’offerta di spazi educativi tradizionali.
Informazioni
Settore
Architettura
Stato lavori
Costruito
Tipologia
Educazione
Location
Castelnovo ne’ Monti, Emilia Romagna
Anno
2018
Luogo
Castelnovo ne’ Monti
Intervento
Polo scolastico
Committente
Comune di Castelnovo ne’ Monti
Dimensioni
superficie area d’intervento: 19.370 m2
scuola dell’infanzia superficie lorda: 1.184,00 m2
scuola primaria superficie lorda: 3.198,90 m2
centro confezionamento pasti superficie lorda: 987,80 m2
Importo opere
scuola primaria e mensa: 2.682.255,64 €
completamento primaria, scuola dell’infanzia e centro confezionamento pasti: 6.407.192,96 €
Prestazioni
progetto definitivo, progetto esecutivo, progetto degli arredi, direzione lavori
Progetto
MATE – Professionisti
Gruppo di progettazione
Maurizio Pavani, Tommaso Cesaro, Martina Buccitti, Michela Pucciariello, Fabiana Aneghini, Mauro Perini, Emilio Bona Veggi, Mario Berriola, Lino Pollastri, Alessandro Sanna, Eleonora Sablone, Alberto Caprara, Pier Luigi Burzacca, Alberto Carsana, Simone Belotti, Mattia Beltrami, Andrea Colosso, Massimo Massetti
Foto
Federico Covre
Impresa esecutrice
I.T.I. Impresa Generale

























