Sport Hall – Thiene
L’edificio sorge nella zona Cittadella degli Studi a Thiene, con l’obiettivo di dotare la città di un “contenitore per lo sport”. Il progetto nasce dall’articolazione di un programma funzionale in cui differenti discipline sportive si fondono con luoghi di aggregazione, generando un edificio vibrante, aperto al pubblico e agli studenti, promuovendo un’idea di spazio sportivo ed educativo capace di rafforzare l’interazione e lo scambio.
Il progetto non vuole essere una semplice estensione del tessuto urbano esistente; la sua funzione è “integrare” piuttosto che continuare il contesto locale. La lanterna, totem luminoso all’angolo tra via San Gaetano e via Milano, sottolinea il ruolo strategico dell’edificio nel circuito sportivo comunale.
Ingressi dedicati a sportivi, visitatori e clienti della caffetteria sono distribuiti sotto alla pensilina, che accoglie e dirige i flussi, generando un ambito pubblico fruibile nelle diverse ore di apertura.
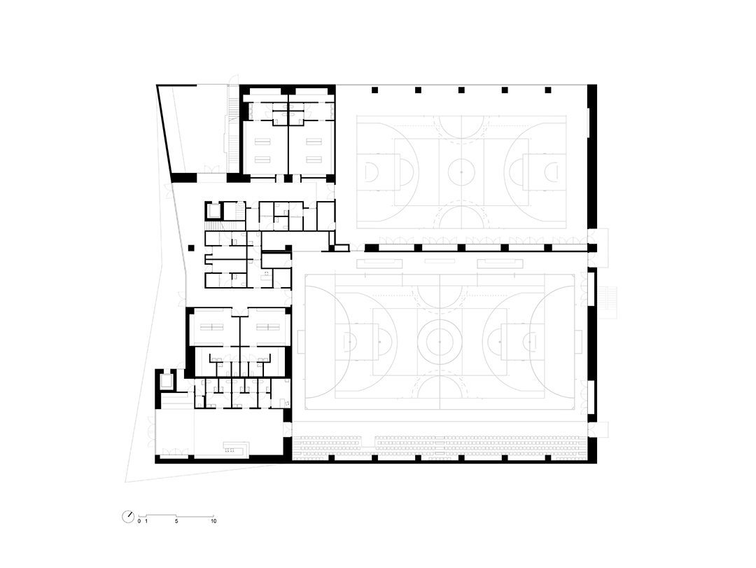
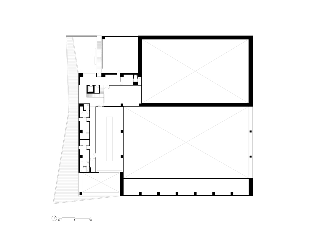
All’interno, una palestra agonistica omologata per il basket di livello silver, baskin, pallavolo e calcio a cinque è attrezzata con una tribuna da 297 spettatori. Una seconda palestra di allenamento può essere separata da una parete mobile, per l’utilizzo contemporaneo da parte di gruppi sportivi. Al piano superiore, uno spazio multiattività e una palestra dedicata alla scherma si espongono con ampie vetrate sui volumi interni a doppia altezza, creando un dialogo visivo tra le diverse discipline. Da ogni livello del fabbricato è possibile ammirare la parete di arrampicata nel cortile interno.
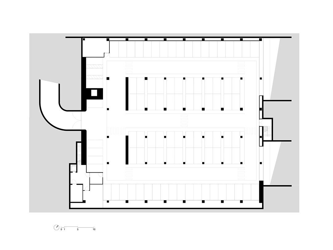
Un golfo per il servizio pubblico urbano, il proseguimento della pista ciclabile di via San Gaetano, un parcheggio interrato con novantatré posti auto e uno esterno da trenta completano funzionalmente la struttura.
Il complesso sportivo è progettato secondo i criteri nZEB.
Informazioni
Settore
Architettura
Stato lavori
Costruito
Tipologia
Sport
Location
Thiene (Vicenza), Veneto
Anno
2018
Intervento
Nuovo Complesso Sportivo
Committente
Comune di Thiene
Dimensioni
superficie lorda 6.441 m2
Importo opere
8.000.000,00 €
Prestazioni
progetto preliminare, progetto definitivo, progetto esecutivo, direzione lavori
Progetto
MATE – C.F. Latorre, A. D’Affronto – C. Scanavini
Gruppo di progettazione
Maurizio Pavani, Fabiana Aneghini, Livia Travaglini, Michela Pucciariello, Tommaso Cesaro, Laura Mazzei, Carlos Fernando Latorre, Andrea D’Affronto, Jacopo Balsamo, Emilio Bona Veggi, Mauro Perini, Laura Gennari, Lino Pollastri, Alessandro Sanna, Eleonora Sablone, Virginia Celentano, Franca Conti, Francesca Di Nocco, Elettra Loewenthal, Pierluigi Burzacca, Claudio Scanavini
Imprese esecutrici
E.G.I. Zanotto
Mazzimpianti
Foto
Federico Covre
Materiali
Controsoffitti:
Celenit
Pavimentazioni in legno:
AdiSportFloor
Protezioni antitrauma:
Codex
Arredi sportivi:
Gammasport
Infissi:
Schüco
Illuminotecnica:
Novalux, Wever & Ducré
Lastre Policarbonato:
dott. Gallina























