Polo innovativo per l’infanzia – Villafranca di Verona
Il nuovo Polo dell’infanzia accoglie un nido per 60 bambini e una scuola dell’infanzia per 270 bambini. Il progetto è il risultato di un percorso partecipato che ha coinvolto genitori, insegnanti e personale della cucina, al fine di rispondere in modo concreto alle esigenze della comunità scolastica.
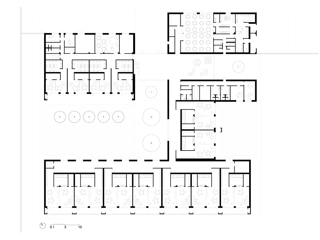
L’edificio, sviluppato su un unico piano, adotta una struttura mista in calcestruzzo prefabbricato e legno lamellare. Un ampio atrio di ingresso funge da cerniera tra il nido, la scuola dell’infanzia e l’area mensa, mentre la cucina e gli uffici amministrativi dispongono di accessi indipendenti.
La progettazione degli spazi didattici si ispira ai principi pedagogici della Fondazione Malaguzzi di Reggio Emilia, ponendo il bambino e la natura al centro del progetto. L’intero complesso ruota attorno a sei principi fondamentali: incremento degli spazi dedicati all’apprendimento; diversificazione delle aree educative; flessibilità degli ambienti; studio e uso consapevole del colore; sicurezza e accessibilità; connessioni attive tra gli spazi.
Gli ambienti sono pensati come luoghi di esperienza e scoperta, con una molteplicità di zone: aule laboratorio;
servizi igienici concepiti come laboratori di igiene; aree aggregative e di progettazione; spazi dinamici di transito e svago; zone della scoperta, del silenzio, della comunità e della proiezione.
Particolare attenzione è rivolta al comfort ambientale: qualità acustica garantita da materiali fonoassorbenti;
qualità dell’aria assicurata da impianti di ventilazione meccanica controllata (VMC); utilizzo di energie rinnovabili e materiali ecocompatibili.
Le aree esterne attrezzate dialogano in continuità con gli spazi interni, creando un ambiente educativo aperto e stimolante. Il Polo rispetta i Criteri Ambientali Minimi (CAM) ed è classificato come edificio NZEB (Nearly Zero Energy Building).
Informazioni
Settore
Architettura
Stato lavori
In corso
Tipologia
Educazione
Location
Villafranca di Verona, Veneto
Anno
2021
Intervento
Polo innovativo per l’infanzia
Committente
Comune di Villafranca di Verona
Dimensioni
Parco: 10.349 mq
Scuola: superficie lorda 2.406,98 m2
Importo opere
10.709.228,95 €
Prestazioni
progetto definitivo, progetto esecutivo
Progetto
MATE – Professionisti srl
Gruppo di progettazione
Maurizio Pavani, Fabiana Aneghini, Tommaso Cesaro, Paolo Chiavaroli, Martina Cimino, Agostino Maiurano, Diego Festa, Mauro Perini, Simone Belotti, Andrea Colosso, Alberto Carsana, Simone Belotti, Lino Pollastri, Elettra Lowenthal, Massimo Massetti, Mattia Beltrami, Eleonora Sablone, Alessandro Sanna
Render
Alessandro Talò
















