Campus scientifico “Enrico Mattei” – Urbino
Il Campus Scientifico Enrico Mattei sorge in Via Cà le Suore, a circa 4 km dal centro di Urbino, in un contesto collinare di alto pregio paesaggistico. Il complesso architettonico è inserito all’interno di un Parco Attrezzato Scientifico, il quale occupa una rilevante parte dell’area Sud del comune e costituisce uno dei cinque Parchi di Urbino.
Il nuovo Campus scientifico Mattei, sede dell’Università degli Studi Urbino Carlo Bo, prevede il recupero del complesso ex Sogesta – Centro studi in tecnologie avanzate – realizzato nel 1973 da ENI per diventare un punto di formazione d’eccellenza e per ospitare attività relative all’alta tecnologia legate al gruppo ENI. Dal 1994 l’Università di Urbino ha rilevato la proprietà del comparto, oggi “Campus Scientifico Enrico Mattei”, per farne la sede di alcuni corsi di laurea e di laboratori di ricerca.
L’intervento si configura come riqualificazione di un primo stralcio del campus al fine di migliorarne l’efficienza energetica ed il comportamento sismico, rinnovando al contempo gli spazi esistenti, in maniera tale da adeguarli alle mutate esigenze di didattica e sperimentazione e alle normative per l’accessibilità e la sicurezza.
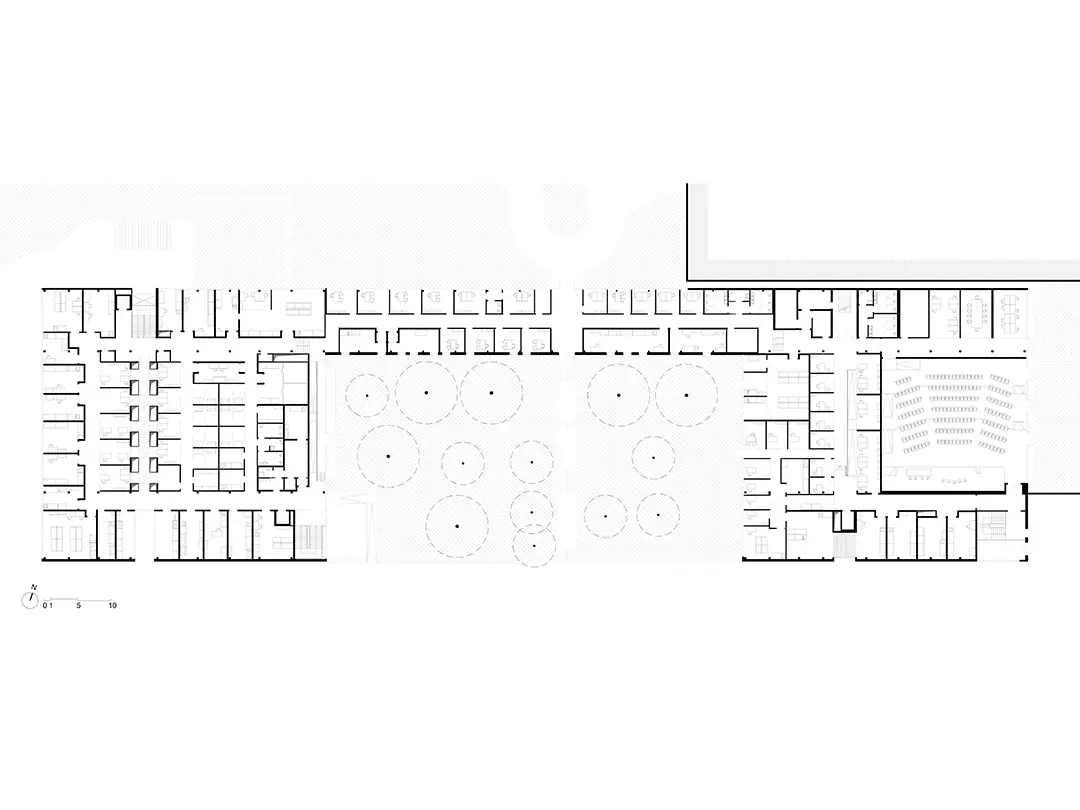
Il complesso sfrutta l’orografia del terreno con vani su differenti livelli e ampie vedute sulla campagna circostante. È costituito da una coppia di blocchi principali adibiti per lo più a laboratori e studi più un’aula magna; il collegamento è assicurato da un corpo trasversale vetrato che è insieme asse di distribuzione e sede degli uffici direzionali e amministrativi. A sud della stecca centrale, un sistema di spazi aperti terrazzati raccorda i due dislivelli.
Il progetto ha puntato a mantenere inalterate le caratteristiche formali e volumetriche dell’edificio esistente e le relazioni e rapporti di equilibrio consolidati con il contesto collinare di Urbino e della parte del campus non oggetto dell’intervento. Nelle scelte progettuali adottate si è cercato il più possibile di mantenere intatti i caratteri originari del manufatto edilizio, minimizzando il più possibile l’impatto degli interventi da realizzarsi in esterno. Il nuovo involucro ripresenta lo stesso linguaggio architettonico del manufatto originario. La riproposizione della finitura in mattone facciavista e il mantenimento del cornicione in copertura, riconosciuta come tratto distintivo dell’edificio, sottolineano la volontà progettuale di impostare un intervento quasi “conservativo”.
L’intervento, per una superficie totale di 5.000 m² distribuiti su due livelli, ha portato alla realizzazione di 45 laboratori, 37 Uffici, 1 stanza di crioconservazione, 8 suit di colture cellulari, stabulari, 1 locale ultracentrifughe e 1 locale centrifughe, 14 Uffici, 1 Laboratorio microscopi (5 locali), 1 aula magna, 6 sale riunioni / spazi di coworking. Nel complesso troveranno spazio il Dipartimento Scienze Biomolecolari e Scienze di Base.
Informazioni
Settore
Architettura
Stato lavori
Costruito
Tipologia
Università
Location
Urbino (PU), Marche
Anno
2020
Intervento
Intervento di prevenzione sismica ed efficientamento energetico del Campus Scientifico Enrico Mattei
Committente
Università degli Studi di Urbino Carlo Bo
Dimensioni
superficie lorda 5.000 m2
Importo opere
16.000.000,00 €
Prestazioni
progetto esecutivo, progetto costruttivo, as-built, direzione artistica
Progetto
MATE
Gruppo di progettazione
Maurizio Pavani, Tommaso Cesaro, Martina Buccitti, Arturo Augelletta, Lino Pollastri, Mario Berriola, Silvio Stivaletta, Alessandro Sanna, Andrea Elmi, Andrea Bassoli, Sara Greco, Alessandra Strinati, Wladim Morigi
Impresa esecutrice
Formula Servizi
Idrotermica
Foto
Federico Covre
Materiali
Pavimenti e rivestimenti: Casalgrande Padana
























