Riqualificazione e ampliamento polo scolastico – Monastier di Treviso
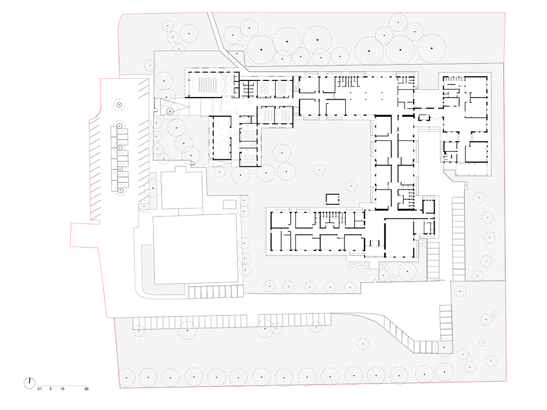
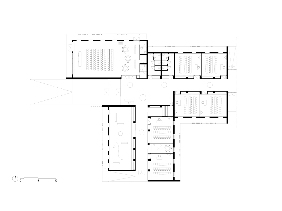
Il Polo scolastico di Monastier di Treviso, costituito sul finire degli anni ’80 e completato a più riprese nel 2010 ospita una scuola d’Infanzia, una scuola primaria e una scuola secondaria di primo grado per un totale di circa 490 alunni. L’intervento seguito da MATE ha riguardato l’efficientamento energetico, il miglioramento sismico, la messa a norma per la prevenzione incendi e l’ampliamento per ospitare la nuova sede della Scuola secondaria di primo grado.
I principi funzionali che hanno ispirato l’intervento sono stati: organizzare gli spazi educativi secondo la metodologia DADA (Didattiche per Ambienti di Apprendimento) e allestire classi del tipo 3.0 dove ai libri tradizionali viene affiancato in maniera strutturata l’utilizzo di device informatici per una didattica flessibile. Da un punto di vista energetico l’intero intervento ha puntato all’utilizzo di tecnologie di ultima generazione che alimentate da energie rinnovabili e gestite attraverso sistemi di domotica hanno permesso all’intervento di raggiungere la classificazione di edificio a energia quasi zero (nZEB).
Nasce così una scuola inclusiva e accogliente dove l’agorà d’ingresso e l’auditorium con funzione di “civic center” sono spazi che si aprono alla comunità e gli spazi di connessione sono pensati come spazi di relazione arricchiti dalla luce naturale che entra da ampi lucernai sulla copertura. Le classi e i laboratori sviluppati a partire dalle esigenze pedagogiche e didattiche, garantiscono un elevato confort ambientale, termico, acustico e illuminotecnico e sono dotate di arredi innovativi, banchi flessibili e lavagne interattive.
Gli spazi esterni verdi, facilmente accessibili e sempre in continuità spaziale e visiva con gli ambienti interni sono un’estensione naturale dello spazio educativo.
Informazioni
Settore
Architettura
Stato lavori
Costruito
Tipologia
Educazione
Location
Monastier di Treviso, Veneto
Anno
2019
Intervento
Riqualificazione e ampliamento polo scolastico
Committente
Comune di Monastier di Treviso
Dimensioni
Superficie area d’intervento: 24.821 m2
Scuola dell’infanzia esistente superficie lorda: 760,32 m2
Scuola primaria esistente superficie lorda 1.873,98 m2
Ampliamento scuola Secondaria di 1 grado superficie lorda: 1618,53 m2
Importo opere
2.377.000,00 €
Prestazioni
Prodotto definitivo, progetto esecutivo, progetto degli arredi, direzione lavori
Progetto
MATE – Poolmilano – Professionisti
Gruppo di progettazione
Maurizio Pavani, Tommaso Cesaro, Martina Buccitti, Michela Pucciariello, Fabiana Aneghini, Mauro Perini, Silvio Stivaletta, Lino Pollastri, Alessandro Sanna, Eleonora Sablone, Alberto Caprara, Pierluigi Burzacca. Luca Mereu.
Foto
Federico Covre
Riconoscimenti
Primo premio “La Ceramica e il Progetto 2022” categoria “Istituzionale”






















