Restauro Palazzo Cornaggia – Thiene
Edificata in epoca tardogotica, Villa Cornaggia a Thiene costituisce la genesi di un complesso edilizio ampliato in epoca rinascimentale fino agli anni Settanta del secolo scorso. Teatro degli avvicendamenti politici, da residenza nobiliare a avamposto militare, sede dei Missionari Comboniani, collegio Vescovile, istituto scolastico superiore e oggi sede della Biblioteca Comunale, il Cornaggia è un palinsesto storico la cui costruzione attraversa sei secoli di rimaneggiamenti, danneggiamenti, ricostruzioni e abbandono.
Riconosciuto lo status di immobile vincolato, il Comune ha promosso il progetto di restauro e di programmazione funzionale, nel contesto del Campus scolastico e della rete dei servizi pubblici cittadini.
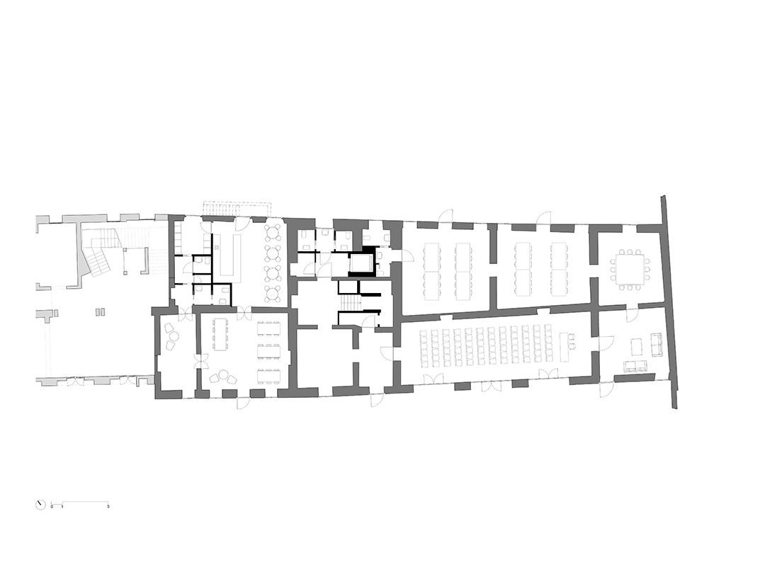
Il progetto dovrà garantire la conservazione e la lettura degli spazi e degli apparati pittorici, attraverso l’analisi delle stratigrafie, l’eliminazione di superfetazioni e un’interpretazione contemporanea degli spazi, spogliati della loro funzione originaria. La valorizzazione della scalinata ottocentesca e dell’ingresso, l’inserimento del vano ascensore e dei servizi dedicati, sono il primo passo per la riorganizzazione funzionale dei tre piani dell’edificio, che diverranno un moderno contenitore multifunzionale attivo nell’intero arco della giornata, a presidio di un sistema integrato di spazi pubblici per lo studio e il tempo libero.
Il raccordo funzionale tra la Villa e la Biblioteca è costituito dalla nuova caffetteria antistante il giardino principale e il Parco dello Studente, protetti dalle mura di cinta. Il piano terra, oltre a garantire l’accessibilità ai diversi livelli, si definisce come “salotto urbano” con vista sui giardini. La Sala Meneghello conserva la vocazione di spazio conferenze, mentre le sale sul retro, riportate alla luce, sono attrezzate per lo studio.
Il piano nobile è destinato a spazio museale, in quanto esso stesso manufatto di indiscusso valore storico, organizzato secondo una chiara disposizione dei percorsi e l’installazione di un apparato tecnico impiantistico capace di supportare le esigenze delle installazioni, che siano esse di carattere tradizionale o multimediale.
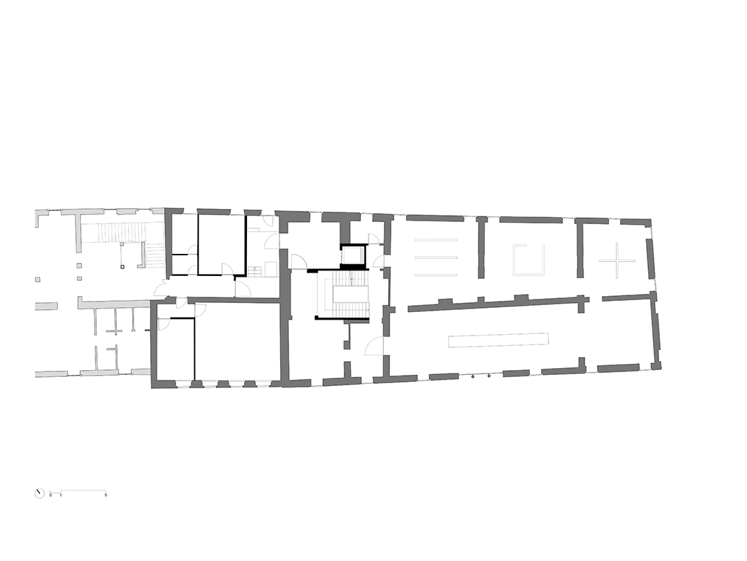
Il sottotetto, definito spazialmente dalla discontinuità delle altezze dovute alle importanti strutture di sostegno della copertura, è messo “a nudo” nelle sue caratteristiche strutturali, nelle tracce di aperture e nelle modifiche realizzate nel corso dei secoli. Al suo interno troveranno spazio gli uffici della Biblioteca Comunale, spazi per il coordinamento e meeting.
La progettazione degli esterni è volta a instaurare una nuova gerarchia degli spazi, funzionale alla fruizione pubblica delle diverse realtà che abiteranno Palazzo Cornaggia, enfatizzando l’apertura alla città, ridisegnando in senso accogliente l’ambito d’ingresso principale e tentando di conferire ordine e dignità alle diverse componenti (vegetali e impiantistiche) del “backyard”, consentendo la fruizione di tutti gli ambiti, come la collinetta artificiale della ghiacciaia, e l’accesso ai mezzi per la manutenzione.
Informazioni
Settore
Architettura
Stato lavori
Completato
Tipologia
Musei, Restauro
Location
Thiene (Vicenza), Veneto
Anno
2022
Intervento
Riqualificazione del complesso di Palazzo Cornaggia per servizi sociali, culturali ed educativi
Committente
Comune di Thiene
Dimensioni
superficie lorda 1.900 m2
Importo opere
5.245.000,00 €
Prestazioni
progetto definitivo, progetto esecutivo
Progetto
MATE
Gruppo di progettazione
Maurizio Pavani, Fabiana Aneghini, Livia Travaglini, Sara Greco, Agostino Maiurano, Tommaso Cesaro, Franca Conti, Francesca Di Nocco, Virginia Celentano, Elettra Lowenthal, Mauro Perini, Silvio Stivaletta, Alessandro Sanna, Eleonora Sablone, Andrea Elmi
Consulenti
Giacomo Cadelli (Cooprogetti), Maurizio Casoni (Cooprogetti), Simona Vuerich, Christian Mauro
Render
Alessandro Talò














